|
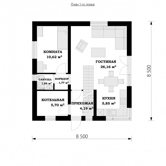
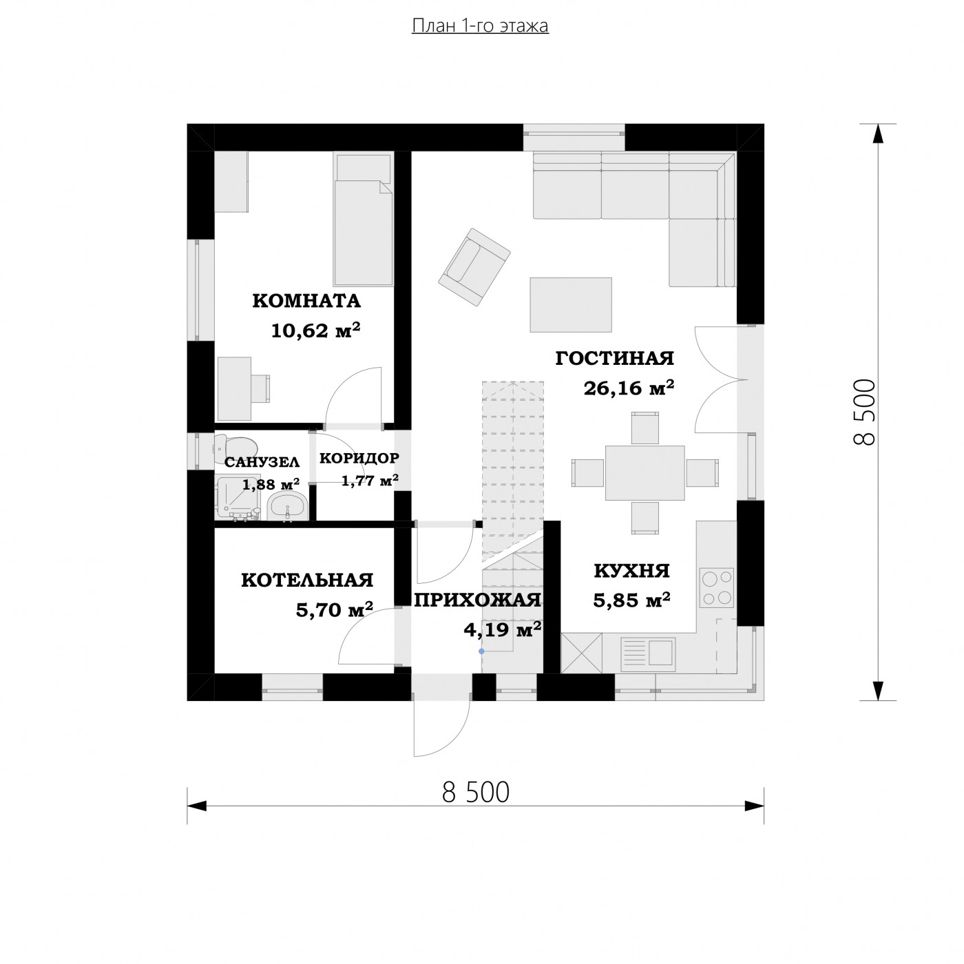
Площадь, м²
|
111,73 |
|
Этажей
|
2 |
|
Размеры, м
|
8,5х8,5 |
|
Количество спален
|
4 |
Мы используем в строительстве крупноформатные стеновые панели (вместо классических блоков), а это значит, что применяется жидкий полистиролбетон, который соответствует ГОСТу.
За счет того, что мы заливаем целые стеновые панели (до 12 метров шириной и 3 метров высотой), а не отдельные блоки, стоимость 1 кв.м. готовой стены значительно снижается, а использование уже готового "конструктора" позволяет уменьшить время сборки дома до 2-3 дней.
Перед отправкой к вам на участок стеновые панели проходят несколько этапов проверки на геометрию, прочность и другие характеристики, а
также на соответствие проектной документации.
В случае производственного брака (или если стеновая панель не подходит по размерам) завод предоставит замену в течение 3-7 дней.
Вы можете выбрать базовый типовой проект, но изменить кровлю, планировку и отделочные материалы, чтобы сделать ваш дом уникальным. Также мы можем разработать индивидуальный проект под вас.
Срок сборки дома зависит от типа выбранной кровли. Если вы выбираете дом в стиле «хай-тек» с плоской кровлей, то его сборка займет всего 2-3 дня. Если же вы рассматриваете такие стили, как «шале», «барн» или «классику» с вальмовой кровлей, то здесь нужно учесть сроки кровельных работ, которые могут занимать 5-7 дней.
Мы понимаем, что покупка дома требует больших затрат. Поэтому предлагаем выбрать способ оплаты, удобный вам. Можете оплатить весь проект сразу или поэтапно:
- Авансовый платеж на этапе заключения договора. Необходим для начала работ.
- Второй платеж производится после сдачи фундамента дома.
- Третий платеж нужно совершить после завершения работ по монтажу несущих конструкций.
- Последний платеж совершается при подписании акта сдачи-приема готового к эксплуатации объекта.
Стоимость каждого из этапов — 25% от общей стоимости. После заключения договора сумма не изменится без согласия заказчика. Вы можете произвести оплату из материнского капитала, оформить ипотечный кредит или рассрочку.
Для расчета процентов по ипотеке воспользуйтесь нашим калькулятором.
